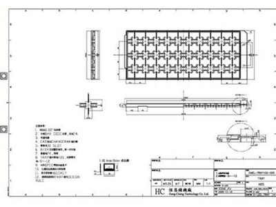
專業 O-LED 承載盤設計與製造