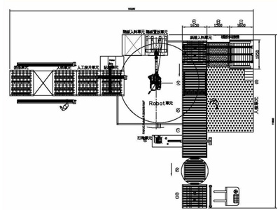
薄膜太陽能電池包裝線 Thin-Film Solar Packing Line      
 

 
Dimension : Customize, by User Spec.
Tact Time : Customize, by User Spec.
Interface : Customize, by User Spec.